Domy
Prodej novostavby nízkoenrgetického bungalovu 5+KK v Kaplici 143 m2 na pozemku 886 m2.
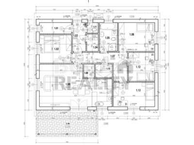
Nabízíme Vám novostavbu prostorného rodinného domu 5+KK v Kaplici cca
40 km od Českých Budějovic. Dům se nachází na pozemku o velikosti
886 m2 v krásné lokalitě v Kaplici v nově zbudovaném ZTV s dobrou
dopravní dostupností. Jedná se o nízkoenergetický zděný bungalov
o zastavěné ploše 143 m2, stavěný z kvalitních materiálů. Při
konstrukci domu je kladen důraz na kvalitu, dlouhou životnost stavby a
energetické úspory. Cihelné zdivo Porotherm, kvalitní okna s trojsklem,
podlahové vytápění, záruka na konstrukce. Dům je na pozemku umístěn tak,
aby měli obyvatelé dostatek slunce během celého dne a je dispozičně
řešen jako 5+KK s možností klientských změn dispozice. Součástí domu
při předání jsou podlahové krytiny, vybavení koupelen, obložky, dveře,
vše možné vybrat dle přání klienta včetně barvy fasády. Je provedeno
oplocení pozemku a budou vydlážděné chodníky a parkovací stání pro
2 osobní automobily. V základní variantě není zahrnuto jen osázení
zahrady, kuchyňská linka a osvětlovací tělesa.
Možno zvolit jiný typ a velikost domu. Dokončení plánováno cca na duben
2021. Na nemovitost zajistíme vhodné financování.




















